Neubau Mehrfamilienhaus

Hengtestraße 38

Neubau Mehrfamilienhaus

6 Wohnungen zu verkaufen

6

Wohnungen

3 & 4

Zimmer

77-124 m²

Wohnfläche (ca.)

Anfang 2027

Fertigstellung

An der Hengtestraße 38 in Coesfeld entsteht ein modernes Mehrfamilienhaus mit sechs hochwertigen Eigentumswohnungen. Die Architektur überzeugt durch klare Linien, großzügige Grundrisse und eine durchdachte Raumaufteilung.

Erdgeschoss: Zwei 3-Zimmer-Wohnungen sowie eine Maisonette-Wohnung – jeweils mit Terrasse und eigenem Garten.

Obergeschoss: Zwei komfortable 3-Zimmer-Wohnungen mit Balkon.

Dachgeschoss: Eine exklusive Penthouse-Wohnung mit großzügiger Dachterrasse.

Alle Wohnungen sind barrierefrei über den Aufzug erreichbar und bieten schwellenlose Zugänge. Carports mit vorbereiteten Leerrohren für E-Ladestation runden das Angebot ab.

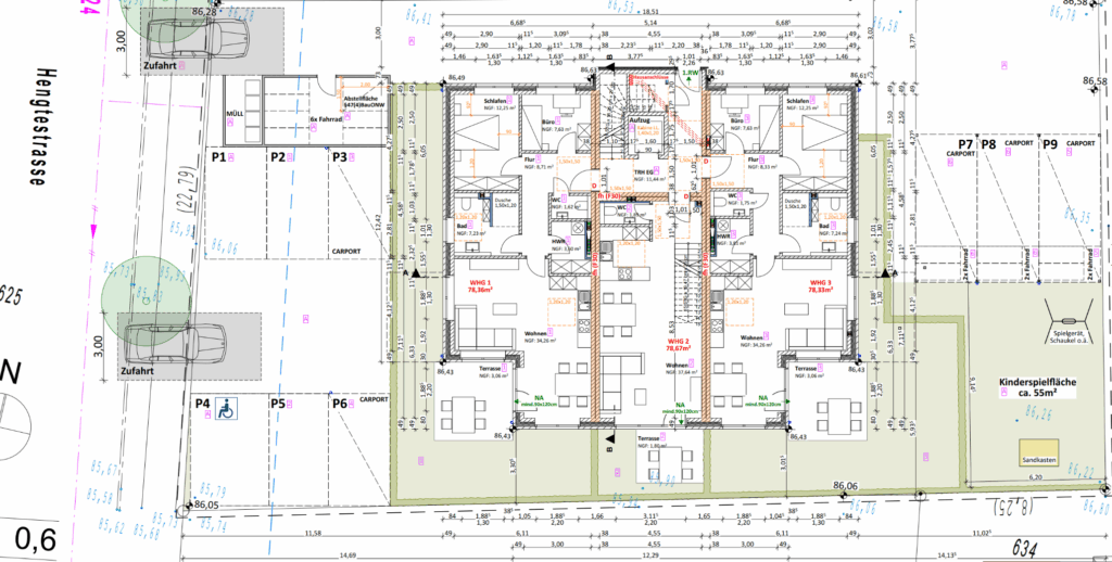
Grundriss Ergeschoss

Das Erdgeschoss bietet drei moderne Wohnungen, die alle mit einer Terrasse und eigenem Garten ausgestattet sind. Neben einem großzügigen Wohn-Essbereich mit offener Küche verfügt jede Einheit über ein barrierefreies Bad mit bodengleicher Dusche sowie ein Gäste-WC. Praktische Hauswirtschafts- bzw. Vorratsräume und durchdachte Arbeits- oder Gästezimmer machen die Wohnungen flexibel nutzbar. Besonders die Maisonette-Wohnung überzeugt durch ihren zusätzlichen Wohnraum und den direkten Zugang in den privaten Garten – ideal für Familien oder alle, die das Leben im Grünen schätzen.

Grundriss 1.OG

Im Obergeschoss entstehen zwei komfortable 3-Zimmer-Wohnungen, die durch ihre klare Raumstruktur und viel Tageslicht bestechen. Die großen Wohn-Essbereiche mit offener Küche bilden den Mittelpunkt des Lebens, während die Schlafzimmer Ruhe und Rückzug ermöglichen. Beide Wohnungen verfügen über einen eigenen Balkon, der den Wohnraum nach außen erweitert und einen herrlichen Platz zum Entspannen bietet. Auch hier sind barrierefreie Bäder, Gäste-WC und funktionale Hauswirtschaftsräume selbstverständlich integriert.

Grundriss Dachgeschoss

Das Highlight des Hauses ist die Penthouse-Wohnung im Dachgeschoss. Mit 127 m² Wohnfläche und einer großzügigen Dachterrasse bietet sie ein exklusives Wohnerlebnis über den Dächern von Coesfeld. Ein weitläufiger Wohn-Essbereich mit offener Küche, ein helles Schlafzimmer sowie ein Arbeits- oder Gästezimmer schaffen ein hochwertiges Zuhause mit maximaler Flexibilität. Dank der barrierefreien Gestaltung, eines komfortablen Bades mit bodengleicher Dusche und zusätzlichem Gäste-WC vereint das Penthouse modernes Wohnen mit höchster Lebensqualität.

Ausstattung

In der Planung unseres Mehrfamilienhauses in Coesfeld, Hengtestr. 38 standen die Bedürfnisse und Lebenssituationen unserer zukünftigen Bewohner im Mittelpunkt.

Optimal gelegen. Schnell verbunden.

Das Wohnhaus liegt in einer ruhigen Seitenstraße in Coesfeld – einer zentralen aber dennoch ruhigen Wohngegend.

Supermärkte, Ärzte, Apotheken, Cafés und Busverbindungen sind fußläufig erreichbar. Die Innenstadt ist lediglich 750 m entfernt.

Neubau MFH 5 WE in Münster

Neubau MFH 6 WE in Coesfeld

Neubau 4 WE in Ahaus

MFH in Marl mit 8 WE + 1 Gewerbeeinheit

MFH Neubau in Gescher

MFH in Gescher

MFH in Reken

MFH in Reken

MFH in Gescher

Wer steckt dahinter?

Jaron Heskamp

Geschäftsführender Gesellschafter sowie Inhaber einer Internetagentur

André Effing

Geschäftsführender Gesellschafter sowie Inhaber eines Handwerksbetriebs mit 9 Mitarbeitern

Jetzt Exposé & weitere Informationen anfordern!

Sprechen Sie uns gern an und wir lassen Ihnen weitere Informationen zukommen.